683 865
c
Бренд:NORDBERG
Будет здорово, если вы напишете свои впечатления о товаре. Это поможет другим покупателям.
0
Оценка
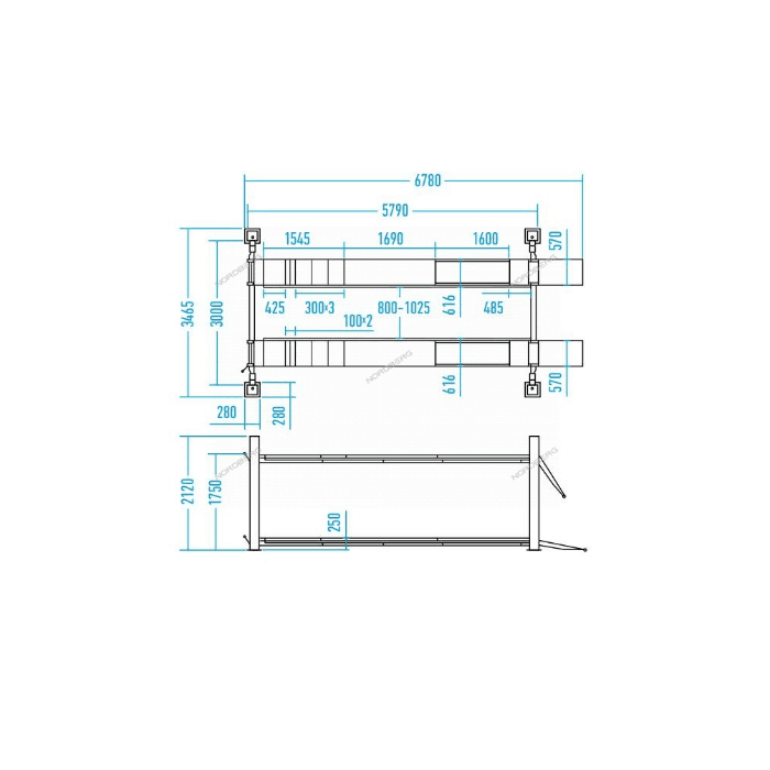
| Грузоподъемность | 5000 кг | Объем бака гидронасоса | 10 л. | |
| Расстояние между колонн | 3000 мм | Ширина заездных трапов | 570 мм | |
| Ширина платформы | 616 мм | Время подъема | 45 сек. | |
| Длина платформы | 5790 мм | Расстояние между трапами | 800-1025 мм | |
| Электропитание | 380 В, 50/60 Гц |
Все товары категории:
Четырехстоечные подъемники

Гарантия доставки
Безопасная оплата удобным способом
Гарантия заказа
На складе 1000 шт. в г. Москва, уточните наличие
Информация о доставке
Будет здорово, если вы напишете свои впечатления о товаре. Это поможет другим покупателям.
0
Оценка